PW-548ERSСH Формовщик коробов Hot Melt
В наличии

Автоматический горизонтальный (формовщик) формирователь коробов PACKWAY PW-547ERSH предназначен для автоматического формирования четырех-клапанных гофрокоробов из картонных заготовок и заклеиванием клапанов при помощи горячего клея.

Принцип работы формирователя коробов PW-548ERSCH:
Система присосок захватывает заготовку из магазина, формирует короб, закрывает нижние клапана и заклеивает горячим клеем «Hot Melt». После этого короб перемещается по приводному транспортеру.

— Сенсорная панель HMI;
— PLC контроллер;
— Оборудован клеевой станцией Nordson M9;
— Датчики OMRON, SICK;
— Ручная настройка под размер короба;
— Горизонтальное формирование гофрокороба;
— Защитные ограждения: Алюминиевая рама с акриловыми прозрачными панелями

Технические характеристики
Электропитание 3 фазы, 220/380/415/440 В
Давление/расход сжатого воздуха 6 Атм/137,64 л/мин
Производительность до 20 кор/мин
Скорость конвейера 25 м/мин
Высота магазина заготовок 775 (мм)
Размеры коробов (мин) ДхШхВ 192 x 127 x 132 (мм)
Размеры коробов (макс) ДхШхВ 340 x 255 x 272 (мм)
Рабочая высота стола 1000 мм
Вес оборудования 1270 кг
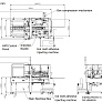
Габаритные размеры оборудования (ДхШхВ) 2502 x 2359 x 1547 (мм)
Яндекс.Метрика